Addari Road, Freetown, Saint Philip, Antigua, Antigua and Barbuda
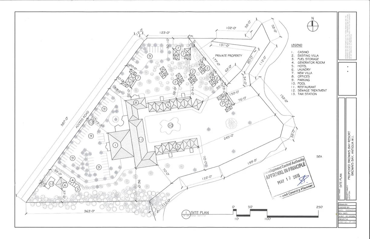
Brown’s Bay presents a rare opportunity to acquire five acres of prime development land on Antigua’s east coast, adjacent to the prestigious Nonsuch Bay area. Featuring small beaches, docking facilities, and provisional approval for a 50-bedroom hotel and casino, the site offers exceptional flexibility for resort, marina, or luxury residential development. Previously operating as a small resort, the land is now primed for redevelopment, with approval in principle for a boutique hotel scheme and alternative potential for a gated villa community with private moorings — a highly sought-after asset in Antigua’s property market.
$500,000
Added: January 8, 2026
Want to be the first to find out about new property listings or price changes, join our newsletter below.
office@duffy.ag
+1 268 729 2020

Trusted Antigua estate agents with decades of experience in Caribbean and UK property, dedicated to helping you find your perfect home or investment in paradise.
$475,000
PCM $1,500
© All Rights Reserved.
HEWLETT HOUSE, ST.JOHN’S STREET, ST. JOHN’S, ANTIGUA